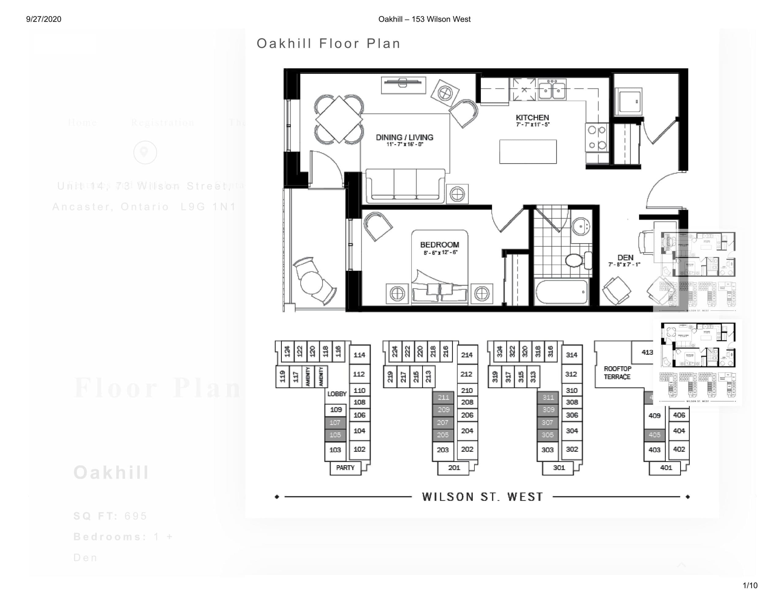
Oakhill — 153 Wilson West Condos | Red Bricks